东原逸墅,择址浦东发展黄金中轴核心,迪斯尼主题乐园(在建中)、极地海洋世界(规划中)、室内冰雪世界(规划中)国际游乐资源环伺;汲取国际化设计理念精髓,将国际品牌“全、宽、优”三大趋势融入造墅理念,匠心打造东原逸墅独有的墅质优配社区,以6大领先核心价值体系,造就惠南高端法式国际墅区。
基本信息
规划信息
配套信息
销售信息
优选顾问推荐
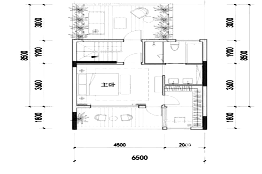
各个空间户型方正,后期空间利用率高;南北不通透的户型,后期居住时常开门通风换气即可;居室布局合理,通风良好,动静分离,兼顾到了卧室和卫生间的私密性;客厅的面宽进深比不在标准范围内,装修时要选择适用尺寸的电视以满足观看距离;公摊高于15%且低于25%,符合住宅公摊正常范围。
各个空间户型方正,后期空间利用率高;户型不是南北通透,后期装修时可以考虑加装纱门改善通风;整个户型空间布局合理,做到了干湿分离、动静分离,方便后期生活;次卧的面宽进深比没达到适用要求,装修时可考虑设计为书房、保姆房等功能房间,提升空间利用率;公摊高于15%且低于25%,符合住宅公摊正常范围。
各个空间户型方正,方便室内家具布置;户型不是南北通透,后期装修时可以考虑加装纱门改善通风;居室布局合理,通风良好,动静分离,兼顾到了卧室和卫生间的私密性;卧室厨卫等各个功能区的面积大小都比较合理,居住体验便利,整体舒适度高;公摊高于15%且低于25%,符合住宅公摊正常范围。
各个空间户型方正,方便室内家具布置;南北不通透的户型,后期居住时常开门通风换气即可;整个户型空间布局合理,做到了干湿分离、动静分离,方便后期生活;卧室厨卫等各个功能区的面积大小都比较合理,居住体验便利,整体舒适度高;公摊高于15%且低于25%,符合住宅公摊正常范围。
各个空间户型方正,方便室内家具布置;全明户型,各部分空间均有窗,可保证整体空间采光和通风,居住舒适度好;居室布局合理,通风良好,动静分离,兼顾到了卧室和卫生间的私密性;客厅、卧室、卫生间和厨房等主要功能间的尺寸以及比例适中,有利于采光和通风,居住起来舒适、方便;公摊高于15%且低于25%,符合住宅公

楼盘开盘、降价、优惠等信息,将会在第一时间短信通知您!
置业专家将在2小时内与您联系(8点-23点),请保持电话畅通。
请验证手机号验证码完成提交
置业专家将在2小时内与您联系(8点-23点),请保持电话畅通。
如当前手机号遗失,请联系0755-33526610进行人工修改
如当前手机号遗失,请联系0755-33526610进行人工修改
此楼盘如有优惠/变价通知,我们会及时通知您!
138****8965已经申请
137****8955已经申请
157****4365已经申请
183****8115已经申请
187****5968已经申请
159****8233已经申请